
Polar 110
Panoramaet av skog og fjell åpenbarer seg allerede fra den åpne entréen og gjennom de store vinduene i panoramautbygget. Spis frokosten på barkrakken, eller tin opp frosne føtter i badstuen – hytta byr på mange muligheter.



Grunnplan

Hems

Panoramaet av skog og fjell åpenbarer seg allerede fra den åpne entréen og gjennom de store vinduene i panoramautbygget. Spis frokosten på barkrakken, eller tin opp frosne føtter i badstuen – hytta byr på mange muligheter.



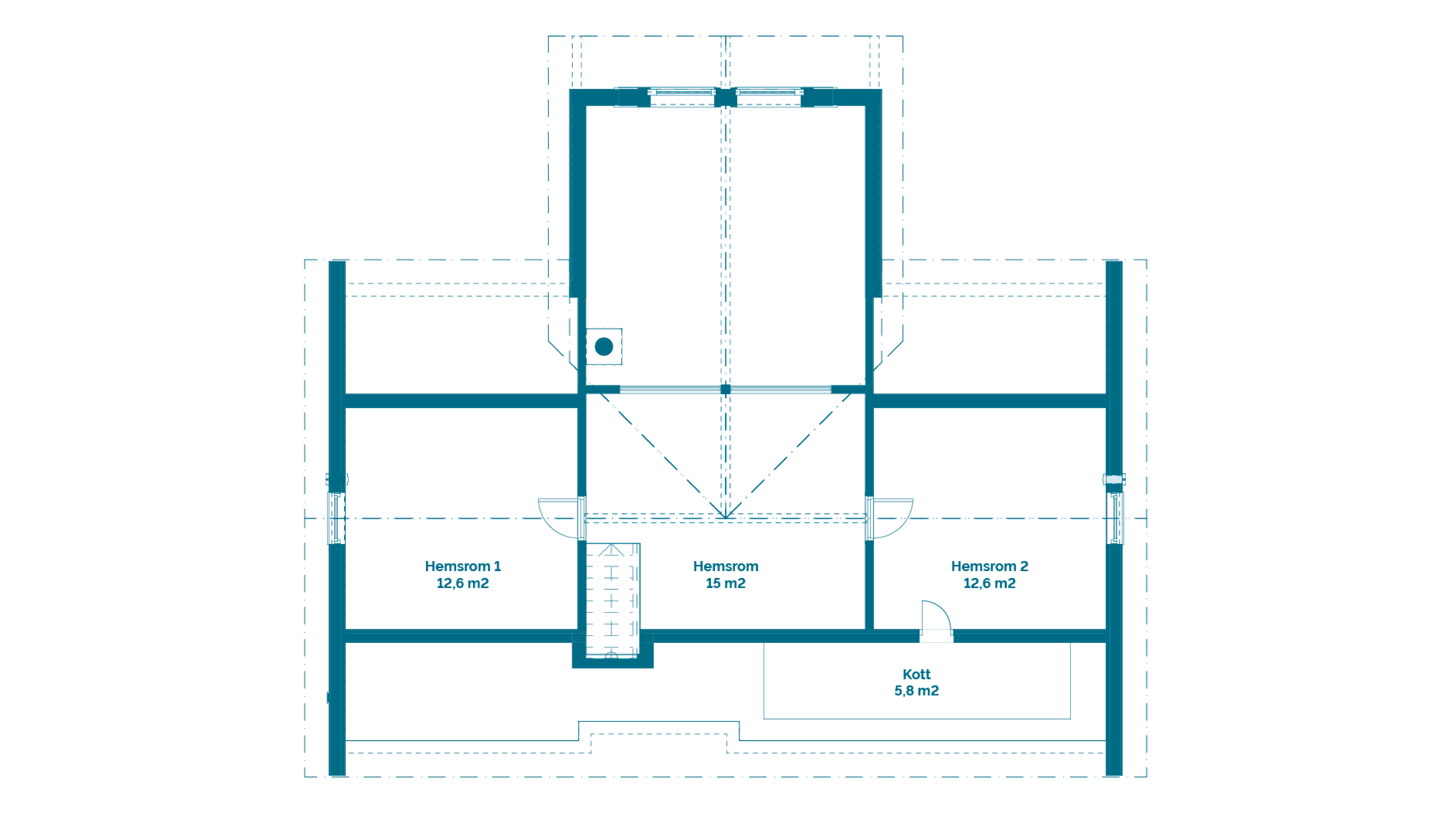
Grunnplan

Hems
BRA:
95,0m²
Antall soverom:
4
Grunnplan:
Stue, kjøkken, spiseplass, 2 soverom, bad/WC, garderobe, ekstra WC, entré, innvendig bod, utvendig bod.
Hems / 2. etasje
Hemsstue og 2 soverom.
*Soverom og stue på hems har lavere takhøyde, og inngår ikke i BRA.
På Sørlandsleia selges hyttene nøkkelferdig på ferdig opparbeidet eiendomstomt. Denne hytta fås nøkkelferdig på de ulike tomte- kategoriene til prisene under. Omkostninger kommer i tillegg, som beskrevet nedenfor.
4 690 000,-
5 190 000,-
5 740 000,-
6 440 000,-
7 240 000,-
I prisene inngår:
Eiendomstomt, opparbeidelse av tomt tilpasset valgt hytte, infrastruktur på feltet, støping av grunnmursplate eller annen tilpasset fundamentering, nøkkelferdig hytte fra våre leverandører, fraktkostnader, syrefaste festemidler, prosjektering, utarbeidelse av byggesøknad.
For tomter med parkering på tomta er opparbeidelse av to biloppstillingsplasser inkludert i prisene over. For øvrige tomter er to biloppstillingsplasser på felles parkering inkludert i prisene i pristabellen.
NB! Kjøper man kun tomt inngår følgende: Råtomt med infrastruktur (vei, vann, avløp, strøm og fiber) til tomtegrensa. Dokumentavgift (2,5%) og tinglysningsgebyr (ca. 500 kr) kommer i tillegg.
Dette kommer i tillegg:
Dokumentavgift på tomt, byggestrøm, renovasjon under bygging, støping av terrassefundamenter iht. original tegning, byggesaksgebyr og tilkobling til vann, avløp, strøm og fiber kommer i tillegg. Totale tilleggskostnader er anslått til ca. kr 260.000 +/- 10 %, avhengig av hyttestørrelse og tomtepris.
Innvendig og utvendig overflatebehandling er ikke inkludert hos Nordlyshytter, Familiehytta og Telemarkhytter, da mange ønsker å gjøre dette selv. På Urbanhus-modellene er dette inkludert.
Tvedestrand Utvikling tar forbehold om at ikke alle modeller passer alle tomter, samt mulige pris- og trykkfeil fra leverandører og myndigheter.
Alle bilder er illustrasjoner. For nøyaktig informasjon om hver hytte henvises det til leverandørens hjemmeside.
